开发模式“离经叛道”,这个潮流体验地是如何引流的?

洛杉矶作为国际化都市,美国最重要的商业中心之一,有着繁荣的经济和多样的商业体。然而,经济全球化使得世界各地消费趋同,商业模式愈发缺乏差异性。在购物体验显得千篇一律的时候,洛杉矶西部的卡尔弗城建立了一座复合型商业中心 Platform LA,打造了一个本地化的独特购物休闲之地,集难得一见的潮流品牌,精品餐厅,创意办公区和艺术展览区为一体,为商业综合体提供了新兴的商业模式。
Platform LA 位于卡尔弗城的心脏 Hayden Tract 。依托于卡尔弗城发达的电影产业,Hayden Tract 有着浓厚的创意文化气息,坐落着密集的创意建筑,风格大胆张扬,狂野奔放。Platform LA 则建立在 Hayden Tract 一块废弃的,曾属汽车代理商的土地上,由50,000m2 的零售区域和80,000m2 的餐厅与创意办公区组成。在这样的地缘背景下,Platform LA 成为了一个不拘一格,颠覆传统商业地产开发理念的创意项目。

卡尔弗城建筑
传统的商业开发项目遵循着置地,定位和招商流程,品牌入驻的选择根据商业项目的定位来确定,项目定位则需经历复杂的市场调研,数据收集,资料分析等环节。然而,Platform LA 的开发过程并不依据公认的项目开发经验,定位由一个设想出发,开发过程的所有环节都为满足这个设想而工作。
Platform LA 创始人 David Fishbein 和 Joseph Miller 说:“我们想创造一个以周边人群为核心的独特体验中心,有趣的东西只有在这里才能找到”。那么,Platform LA 是怎样展现它的独特的?它的特殊之处能给传统商业地产项目带去怎样的启示?
1.“反常规”创新式运营法作招商准则
Platform LA 摒弃了传统的根据定位招商的方式,围绕着 “商户在 Platform LA 的店铺必须是独特的,在洛杉矶其他地方找不到的” 标准选择商户。商户在入驻之前需提交运营方案,说明创新举措才可进驻。这样的招商方式主张创意交流,力求将创意人才聚集在一起。
例如,Reformation 为不想挑选成衣的顾客提供定制服务,只需在触摸屏上点击风格元素,即可自制服装方案。这些潮流品牌追求更加灵活的运营方式,Platform LA 也为它们提供了可拆卸的门店装饰,方便店面设计多变的需求,向消费者展示不断变化的购物体验,对小型商业体保持新鲜感。

可见,Platform LA 招商的特点是精细化。因为 “体验与好玩儿” 是主观的,而不是传统的做好定位匹配,协商店铺位置与租金即完成招商的模式化行为。“体验与好玩儿” 的核心要素难以被捕捉,商户只有在不断尝试变换中找到出路。
体验创新与产品创新不同,前者不能直接导致购买行为,这部分投入的直接表现是为消费者提供服务。然而,据统计,Platform LA 长期商户的营业额是其位于其他位置店铺的5倍,证明了主观消费感受也有其经济价值。
看似不遵循过往经验的招商给 Platform LA 带来了意外的活力,吸引了潮流独立品牌入驻,许多都是将首家店铺开张于此。Blue Bottle Coffee 的率先入驻带动了其他品牌,如鲜榨饮品 Juice Served Here,护肤品牌 Aesop,动感单车连锁 SoulCycle, 生机饮食店 SAO ACAI 等, 都选择在 Platform LA 成为长期商户。

Blue Bottle Coffee
2.社区化空间引出生活方式体验
从面积上说,Platform LA 体量并不算大。然而,没有大体量的气势烘托,Platform LA 依靠精细的规划打造了一个紧凑的商业体,旨在营造社区感和亲切感。占地面积小不意味着不起眼,洛杉矶艺术家 Jen Stark 明艳的壁画铺陈在创意建筑上,既贴合当地的潮流文化,又为 Platform LA 入口制造了吸引。

Jen Stark 壁画
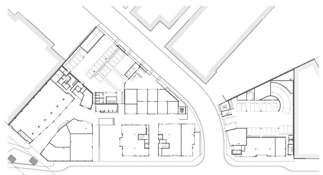
从平面图看,Platform LA 沿路有两个入口,其中一个靠近轻轨出口,较为狭窄。穿过入口,Platform LA 的东西两侧内街显示出商业氛围。西侧内街聚集着服饰家居品牌和生活方式旗舰店;深入西内街则是紧凑的餐饮,生活用品业态;继续前进则进入一个豁然开朗的广场区,配有座椅与各色植物。东侧内街与西侧的业态组合方式类似,不同的是为餐饮品牌留出了户外场地。

Platform LA 平面设计图
综上看来,Platform LA 体量小、门店紧凑,且入口不张扬、建筑风格不一等特点与传统的商业地产规划原则并不一致。面向道路的一侧通常来说价值较高,多运用大块面积展示重要品牌,入口的设计则决定了消费者对商业体的第一体验。而 Platform LA 入口没有明显招牌,道路也不宽阔。靠近公路的一侧展现的都是建筑物的侧面,虽形式丰富却不整齐。

Platform LA 沿街景观
然而,这样看似漫不经心的规划抹去了现有大多商业体为营造购物体验而建立的人造氛围,展示了电影产业区原有的建筑风貌,带去自然与亲切的感受。在紧凑的店铺规划之中,中心广场的存在显示了开发商的慷慨。作为潮流商业综合体,有着共同品味的人群聚集在一起,广场则是助力 Platform LA 消费者交融的俱乐部。 低矮的建筑群和户外餐饮呈现社区化风格,使人群充分接触室外场地,为沟通交流提供了便利。

Platform LA 中心广场
Platform LA 弱化了传统商业地产开发的规划风格,为人群提供了生活化的购物体验。生活化与潮流并不矛盾,潮流也不该被认为是标新立异难以理解,在电影产业区卡尔弗城,创新艺术已融入当地人的血液,成为生活的一部分。
3.合理平衡,长期商户融合短期租赁
Platform LA 对短租商户的开放态度与传统商业大不相同。除了长期商户以外,Platform LA 也为商户提供短至4周的租赁时间。创业品牌大都热衷于在这里短租。新兴品牌的活力与创造力是 Platform LA 想要展现的特质,它不要求品牌以精确的定位瞄准消费者,而是认为新兴品牌自会吸引广大群众当中特定的人。
例如仅在线上开店的女性服饰品牌 Aday 在 Platform LA 举办短期线下服饰展,意在聚集有相同穿着品味的人群交流设计想法。新兴品牌在 Platform LA 被给予了充分的空间尝试不同的运营策略,寻找自我特色,Platform LA 也借此展现灵活多变的特质。

比起以销售为主要目的,以坪效衡量收益的购物中心,在这里,消费者的感受更私人化,能为品牌带来其他渠道难以获取的反馈,这也是成熟品牌同样看好短租的原因。例如服饰品牌 Varley 多开在大型购物中心内,却也选择在 Platform LA 租赁短期店铺,利用生活化的购物场景和开放的店铺门面,制造与消费者深入交谈的机会。
传统商业认为长期商户能带来稳定的购物体验和销售收入,而创业品牌运营经验缺乏,抗风险能力欠佳,出现提前撤租的情况会导致店面空置,损失租金,因而对引入创新品牌持保守态度。Platform LA 则反其道而行之,设立短期租赁店面,在不损失运营成本的同时使品牌常换常新,每一次都带去新鲜的购物体验。
Platform LA 不拘一格的策划理念为模式化的商业地产项目规划注入了新鲜血液,背后是舍弃商业瞄准特定人群,而使人群来自行寻找贴合自身潮流趣味的逻辑,是真正的服务精神。
在过去,商业改变了人们对物质与时尚的理解,然而,在人们对未来商业的设想中,人对生活的理解开始主动影响商业。

